工程師上門指導管道清洗機難題
立即咨詢 鋁模板近幾年的發展勢頭非常迅猛,特別是在高層建筑應用非常廣泛,因為鋁模施工較傳統木板有著環保、、優良、的特點,鋁模板較大程度的改善了傳統建筑行業施工環境、提高工藝質量,由于材料的特殊性,他是具備重復利用條件,但模板內遺留下來的雜物影響進步施工的質量,且模板表面的吸附力好、延展性差,施工后粘附在上邊的混凝土很難清洗,所以大多數施工單位采用自動高壓水清洗線來代替傳統方式,不但清洗速度快而且干凈,純物理高壓水清洗,減少人工,同時還延長了鋁模板的使用壽命。
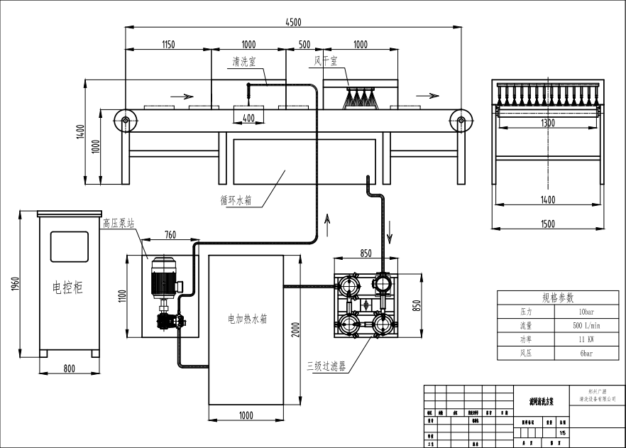
近期我們根據客戶要求及鋁模板的構造、尺寸和清洗程度,聯合技術部制作研究清洗方案,很后達成交易。其工作原理:由電機動力轉動帶動高壓泵曲軸運動,曲軸帶動連桿推動柱塞做往復式運動中,將液力端低壓水轉換成高壓水,從高壓泵出水口輸出,經過高壓膠管高壓槍等傳送,由高壓噴嘴射出,由于噴射到物體表面的沖擊力大于水泥/混凝土在鋁模板表面的附著力,從而使水泥混凝土從鋁模板表面剝離,達到清洗效果。設計制作清洗室,安裝在輸送線中間,將清洗噴嘴設置為數量的噴嘴清洗裝置放置在清洗室內,四面全覆蓋式清洗;工作過程:將需要清洗的鋁模板放置在輸送線一端,有由輸送線滾軸帶動輸送 進入清洗室內進行完整清洗,然后從清洗室另一端輸送出去,清洗完成。
鄭州廣源竭誠為您服務:
1.我們有的銷售人員解答您的問題,關于技術參數、付款方式、物流配送等問題。
2.您可以聯系我們,我們會立馬給您回復的
3.機器做好后您可以來廠驗貨,或者我們會發機器圖片以及試機視頻給您。
4.我們會提供與機器有關的資料,包括裝箱單、使用說明書、操作流程、機器圖紙等。
5.發貨之后我們會及時跟蹤貨物,以使您按時收到貨物
6.機器除易損配件意外均有一年質保期,一年之內,機器出現問題,電話溝通解決不了,人員上門維修
7.成交以后,后續需要配件的話我們會給予八折優惠